Trilocale in affitto

Milano, Via Durazzo - Feltre
€ 1.400 / mese
3 locali 3 locali
85 Mq 85 Mq
2 bagni 2 bagni

Trilocale in affitto

Milano, Via Durazzo - Feltre

Descrizione annuncio

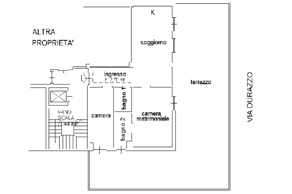
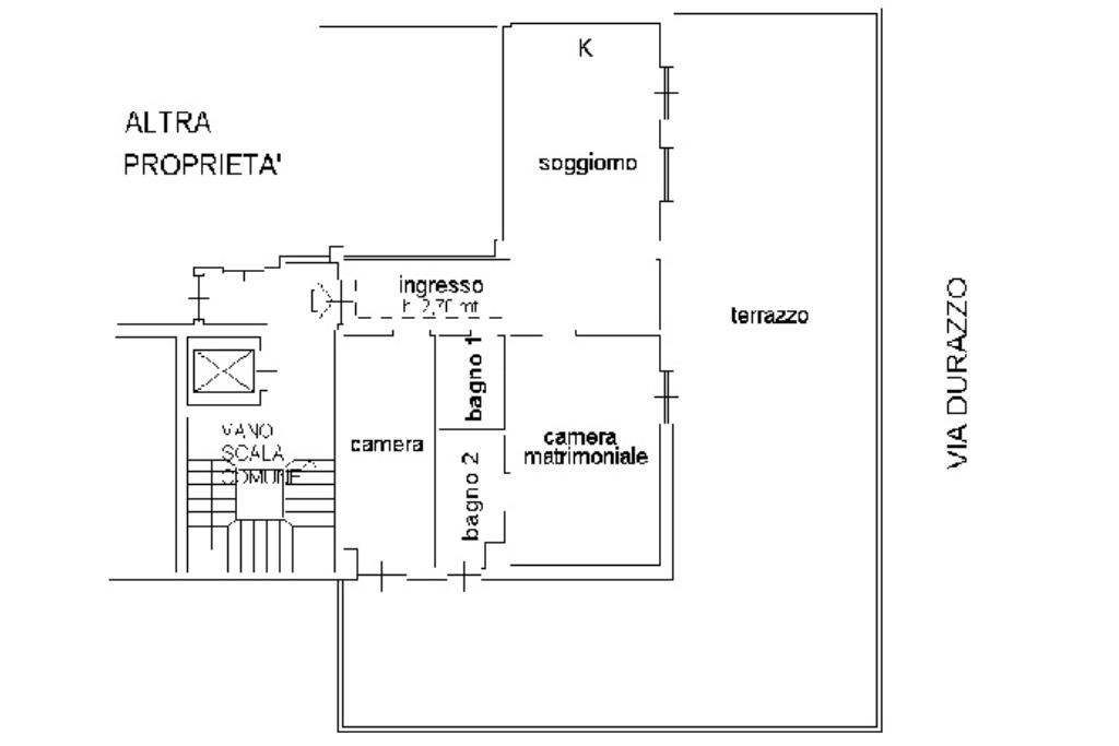
Via Durazzo - A soli 600 metri dalla fermata metropolitana Udine della linea 2 (Verde) e in zona residenziale ampiamente servita da tutti i principali servizi di utilità quotidiana, tra i quali l'Unes e la posta di fianco al condominio, la stazione ferroviaria di Lambrate a 500 mt, i poli universitari di Città Studi e del San Raffaele, banche, uffici postali e svariate attività di quartiere, in condominio signorile anni 70, dotato di tutti i comfort quali: ascensori doppi, servizio di portineria per tutto il giorno, parco condominiale, piscina adulti e piscina bambini, area gioco composta da: un campetto da calcio in ghiaia, un campo da pallavolo/basket e area pattinaggio, proponiamo 3 locali di circa 85 mq, posto al 1° piano composto da: soggiorno con cucina a vista, 2 camere, 2 bagni ed un ampio terrazzo privato di circa 80 mq.

L'immobile internamente si presenta completamente ristrutturato e dotato di aria condizionata.

Per ulteriori informazioni, per fissare un appuntamento per visitare l'immobile o per una valutazione gratuita e senza impegno del Vostro immobile in zona non esitate a contattarci.

Tecnoudine Srl

Via Pordenone, 36 - 20132 Milano (MI)

Ogni agenzia ha un proprio titolare ed è autonoma - Le presenti informazioni non costituiscono elemento contrattuale.

Mostra tutto

Nelle vicinanze

Trasporto pubblico Trasporto pubblico
Udine
Udine
470 m
Lambrate FS
Lambrate FS
650 m
stazione di Milano Lambrate
stazione di Milano Lambrate
450 m
stazione di Cimiano
stazione di Cimiano
1,3 Km
Stazione Lambrate M2
Stazione Lambrate M2
510 m
Ricariche auto elettriche Ricariche auto elettriche
A2A Pacini
630 m
MediaWorld Rubattino
1,0 Km
U2 Supermercato Milano Vallazze | EnelX
1,1 Km
PoliMi - Dipartimento di Elettronica
1,3 Km
A2A PoliMi
1,5 Km
Scuole Scuole
Istituto comprensivo Dino Buzzati
190 m
Sir James Henderson British School
260 m
Scuola primaria Bruno Munari
380 m
Scuole
390 m
Libera Scuola Rudolf Steiner
410 m
Farmacia Farmacia
Santa Chiara
140 m
Rombon
190 m
Farmacia Palmanova
490 m
Farmacia San Paolo
610 m
Farmacia Lambrate
640 m
Ospedali Ospedali
Istituto Clinico Città Studi
1,3 Km
Istituto Neurologico Carlo Besta
1,4 Km
Poliambulatorio di via Don Orione
1,5 Km
San Raffaele - Turro
1,5 Km
Istituto Nazionale dei Tumori
1,6 Km
Supermercati Supermercati
U2
50 m
Esselunga di Via Feltre
280 m
AffamatiUSA
660 m
Unes
690 m
Penny
770 m
Negozi Negozi
Fior di pane
530 m
Negozi
530 m
Alimentari Mini Market
540 m
Minimarket di Novo
640 m
Panificio pasticceria Arioli
640 m
Bar Bar
Bar Oscar
230 m
Bar
330 m
The wall
420 m
Bar Dani
450 m
Guarany
570 m
Ristoranti Ristoranti
El Hornero
320 m
Ristoranti
360 m
La Cappelletta
410 m
NU
430 m
Il calabrone 2
460 m
Mostra tutto

Caratteristiche

Rif.:
61139714
Piano:
1 di 8 con ascensore (Piano basso)
Terrazzi:
1
Camere da letto:
2
Arredamento:
Completo
Condizionamento:
Autonomo
Mostra tutto
Prezzo Prezzo
€ 1.400 / mese
Spese annue Spese annue
€ 2.400

Classe Energetica

D
D
D
D
D
D
D
D
D
EP globale non rinnovabile:
150.02 kW h/m² anno
Anno di costruzione:
1970
Riscaldamento:
Centralizzato
Tipo impianto:
A radiatori
Tipo alimentazione:
Metano

Ti interessa visionare l'immobile?

Fissa un appuntamento  Fissa un appuntamento

Richiedi informazioni

Clicca su Leggi per aprire l'informativa
* Questi campi sono obbligatori
Affiliato
Tecnoudine Srl
Via Pordenone, 36 20132 Milano (MI)

Il nostro staff


  • Maurizio Palumbo
    Affiliato

  • Sonia Chbili
    Coordinatrice
Via Pordenone, 36 20132 Milano (MI)
Zona: Piazza Udine - Cimiano - Quartiere Feltre
Mostra su mappa
Orari: DAL LUNEDI AL VENERDI0 9.00 - 12.30 15.00 - 20.00 SABATO 09.00-16.00
Affiliato
Tecnoudine Srl
Via Pordenone, 36 20132 Milano (MI)

2025 Tecnocasa Franchising S.p.A. - P. IVA 08365160152 - Via Monte Bianco 60/A 20089 Rozzano (MI). Ogni agenzia ha un proprio titolare ed è autonoma. Privacy policy | Policy utilizzo | Cookie policy