Quadrilocale in vendita

Milano, Via Crescenzago - Cimiano
€ 799.000
4 locali 4 locali
120 Mq 120 Mq
2 bagni 2 bagni

Quadrilocale in vendita

Milano, Via Crescenzago - Cimiano

Descrizione annuncio

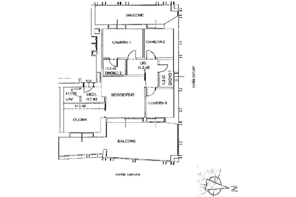
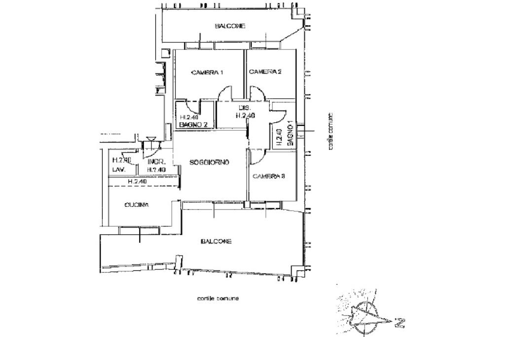
MM Udine – Park Towers, a due passi dalla metropolitana, vicino alla stazione di Lambrate in zona servita da scuole, supermercati, farmacie, mezzi in superficie e nelle vicinanze di tangenziale est e nord, non distante dall'aeroporto di Linate e vicina ai principali servizi di utilità quotidiana, in contesto signorile di nuova costruzione, dotato di servizi di portineria full time, ampio parco condominiale, spazio co – working, palestra condominiale, area bimbi e doppi ascensori, proponiamo in vendita panoramico quadrilocale di circa 120 mq composto da: ingresso, soggiorno, cucina abitabile, 3 camere, 2 bagni di cui uno padronale uno con vasca da bagno, ripostiglio e 2 ampi terrazzi.

Immobile nuovo, mai abitato, in Classe A2, dotato di aria condizionata centralizzata, riscaldamento a pavimento centralizzato con gestione autonoma, pavimenti in parquet nelle camere e nel soggiorno, in cucina pavimento in gres effetto marmo e pavimenti in gres nei bagni.

Possibilità posto auto interno e cantina a parte a € 50.000.

Per ulteriori informazioni, per fissare un appuntamento per visitare l'immobile o per una valutazione gratuita e senza impegno del Vostro immobile in zona non esitate a contattarci.

Tecnoudine .

Via Pordenone, 36 - 20132 Milano (MI)

Ogni agenzia ha un proprio titolare ed è autonoma - Le presenti informazioni non costituiscono elemento contrattuale.

Mostra tutto

Nelle vicinanze

Trasporto pubblico Trasporto pubblico
Udine
Udine
490 m
Lambrate FS
Lambrate FS
1,3 Km
stazione di Cimiano
stazione di Cimiano
550 m
stazione di Milano Lambrate
stazione di Milano Lambrate
1,2 Km
Stazione Lambrate M2
Stazione Lambrate M2
1,2 Km
Ricariche auto elettriche Ricariche auto elettriche
A2A Pacini
1,3 Km
U2 Supermercato Milano Vallazze | EnelX
1,5 Km
MediaWorld Rubattino
1,8 Km
PoliMi - Dipartimento di Elettronica
1,9 Km
Eneldrive Milano 2
2,0 Km
Scuole Scuole
Istituto Tecnico Tecnologico Ettore Molinari
170 m
Scuole
230 m
Scuola Primaria Enrico Fermi
240 m
Nido d'Infanzia
270 m
Istituto d'Istruzione Superiore James Clerk Maxwell
330 m
Farmacia Farmacia
Lloyds farmacia - comunale 58
310 m
Farmacia Palmanova
460 m
A.F.M. COMUNALE N.82
640 m
Santa Chiara
700 m
Farmacia San Paolo
730 m
Ospedali Ospedali
Poliambulatorio di via Don Orione
690 m
San Raffaele - Turro
840 m
Istituto Clinico Città Studi
1,6 Km
Polo riabilitativo Istituto Gaetano Pini
2,0 Km
Istituto Neurologico Carlo Besta
2,1 Km
Supermercati Supermercati
Coop
440 m
Esselunga di Via Feltre
530 m
Penny
560 m
Pam
670 m
Unes
680 m
Negozi Negozi
OVS
380 m
Mini Spesa Supermercato
510 m
Euromania
580 m
Negozi
590 m
Sisa
1,1 Km
Bar Bar
Hot Dog Club
430 m
Bar
510 m
Company Club
620 m
Tatanka
840 m
The wall
910 m
Ristoranti Ristoranti
Jam Grill House
270 m
Ristoranti
480 m
NU
600 m
Grigliomania
810 m
SelfService
830 m
Mostra tutto

Caratteristiche

Rif.:
61128916
Piano:
14 di 14 con ascensore (Piano alto)
Posti auto:
1
Terrazzi:
2
Camere da letto:
3
Arredamento:
Assente
Mostra tutto
Prezzo Prezzo
€ 799.000
Rata mutuo Rata mutuo
€ 3.723 / mese
Spese annue Spese annue
€ 4.000
Proponi il tuo prezzoProponi il tuo prezzo

Classe Energetica

A2
A2
A2
A2
A2
A2
A2
A2
A2
EP globale non rinnovabile:
82.53 kW h/m² anno
EP invernale del fabbricato:
EP estiva del fabbricato:
Anno di costruzione:
2024
Riscaldamento:
Autonomo
Tipo impianto:
A pavimento
Tipo alimentazione:
Metano

Ti interessa visionare l'immobile?

Fissa un appuntamento  Fissa un appuntamento

Richiedi informazioni

Clicca su Leggi per aprire l'informativa
* Questi campi sono obbligatori

Calcola il tuo mutuo

Semplice e senza impegno
Anticipo

( % )
Mutuo

( % )

pochi semplici passi

inserisci i tuoi dati
Questionario completato
Grazie per aver richiesto un appuntamento senza impegno con un nostro Consulente del Credito e Assicurativo.

Hai inserito correttamente tutti i dati necessari e a breve riceverai una e-mail con un link da convalidare per inviare i tuoi dati.
Affiliato
Tecnoudine Srl
Via Pordenone, 36 20132 Milano (MI)

Il nostro staff


  • Maurizio Palumbo
    Affiliato

  • Sonia Chbili
    Coordinatrice
Via Pordenone, 36 20132 Milano (MI)
Zona: Piazza Udine - Cimiano - Quartiere Feltre
Mostra su mappa
Orari: DAL LUNEDI AL VENERDI0 9.00 - 12.30 15.00 - 20.00 SABATO 09.00-16.00
Affiliato
Tecnoudine Srl
Via Pordenone, 36 20132 Milano (MI)

2025 Tecnocasa Franchising S.p.A. - P. IVA 08365160152 - Via Monte Bianco 60/A 20089 Rozzano (MI). Ogni agenzia ha un proprio titolare ed è autonoma. Privacy policy | Policy utilizzo | Cookie policy